5 Aménagements à aire ouverte

une personne entrant dans la résidence à aire ouverte

Souvent employée dans le domaine du design, l’expression « aire ouverte » peut être utilisée pour qualifier tout aménagement intérieur comportant de larges espaces fonctionnels à aire ouverte. Limités au strict minimum, quelques espaces cloisonnés sont souvent essentiels au bon fonctionnement de l’aménagement ainsi qu’au confort des utilisateurs. Les espaces à aire ouverte sont très agréables à fréquenter et comportent plusieurs avantages tels qu’une meilleure qualité d’éclairage naturel, une meilleure circulation d’air et un aménagement plus flexible. Ces effets peuvent également être accentués à l’aide de plafonds de grande hauteur ou même par l’ajout d’une mezzanine surplombant l’espace, par exemple. Voici donc 5 projets résidentiels montréalais comportant des espaces à aire ouvertes inspirants.

1. 5668, rue Laurendeau, Guillaume Pelletier Architecte

Le projet situé dans le quartier Côte Saint-Paul au sud-ouest de Montréal est d’une humble simplicité depuis la rue et d’un minimalisme remarquable derrière sa façade. L’ancien bâtiment commercial rénové en 2015 abrite aujourd’hui 2 condos d’environ 1500 pieds carrés. Ici la hauteur considérable des plafonds (12 pieds) combinée avec l’apaisante blancheur de chaque surface architecturale permet de remplir l’espace d’un éclairage naturel de qualité notable. L’aménagement à aire ouverte combine ici de manière conventionnelle et efficace le salon, la cuisine et la salle à manger, adjacente à une terrasse dans le cas de l’unité supérieure. Quelques cloisons positionnées de façon stratégique et fonctionnelle complètent finalement l’ensemble et intimisent salles de bains et chambres des pièces communes.

cuisine à aire ouverte avec un îlot centrale




salon avec divan et lampe dans un aire ouverte

tout l'étage du bâtiment à aire ouvert

Source : gp-architecte.com

 

2. U building, Atelier Big-city

Ce projet montréalais s’implante sur un segment plus intime de la rue de la Gauchetière ouest, en plein cœur du quartier Ville-Marie. Réalisé par Atelier Big city en 2014, l’édifice résidentiel et commercial s’élève sur 14 étages. Sa façade animée comporte plusieurs angles, de manière à orienter les unités vers différents points de vue sur les alentours. Le bâtiment fait face à la cour de la Basilique Saint-Patrick’s, rare parcelle encore envahie par la végétation dans le secteur. Plusieurs typologies d’unités dont des lofts y sont disponibles et ce même pour quelques nuits. Les suites y sont entre autres particulièrement intéressantes puisqu’elles sont aménagées entièrement à aire ouverte. La structure de béton laissée apparente ajoute de manière élégante différentes textures aux espaces. Le projet, à deux pas de la station Square-Victoria OACI vaut sans aucun doute le détour, ne serait-ce que pour voir sa façade.

vue de l'extérieur lit dans l'unité




salle à manger et cuisine dans l'unité à aire ouverte cuisine et salle à manger dans une cuisine à aire ouverte

Source : corporatestays.com

 

3. Résidence Somerville, Nature humaine

La résidence unifamiliale Somerville fait l’objet d’une rénovation d’un bâtiment résidentiel datant des années 70. Situé sur une étroite parcelle d’une largeur de 16 pieds, l’immeuble comporte quatre étages, tous transpercés par un vide triple hauteur. Les larges percements sont surmontés d’un puit de lumière, ce qui permet de baigner l’espace de lumière naturelle et ce, jusqu’au rez-de-chaussée. L’esprit minimaliste du projet est autant perceptible dans le choix des matériaux que dans les détails de finition, ce qui apporte une certaine harmonie et simplicité apaisante à l’espace. Pour accentuer l’effet d’aire ouverte de la zone cuisine/salle à manger/salon du rez-de-chaussée, les rangements et circulations verticales s’accumulent près des murs, de manière compacte et fonctionnelle. Il s’agit là d’une stratégie d’aménagement très efficace lorsque l’espace disponible est plutôt étroit.

escalier la cuisine avec les escaliers dans l'espace aire ouverte vue de haut de l'espace aire ouverte




la mezzanine de l'espace aire ouverte

Source : naturehumaine.com

 

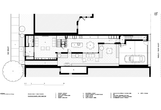
4. Résidence Drolet, Maxime Moreau architecture et design

Complété en 2015, cet étroit projet résidentiel combine les espaces intérieurs à une terrasse extérieure de manière fluide. Le duplex existant date de la fin du 19ème siècle et fut rénové et agrandi en plusieurs phases antérieures. La dernière phase a impliqué la reconstruction quasi totale de l’immeuble, puisque celui-ci se trouvait dans un état presque entièrement démoli (seule la façade avant et le garage existant tenaient en place). Une étude historique complexe a permis de redécouvrir la forme d’origine du bâtiment et d’être la base du nouveau concept architectural. La résidence s’implante finalement de manière peu usuelle, avec différents espaces successifs de plus en plus étroits, graduellement envahis par le jardin.

foyer et divan dans la résidence vue extérieur de la résidence plan de la maison à aire ouverte corridor donnant sur la cour extérieur




vue de l'extérieur résidence drolet

Source : mxma.ca

 

5. Résidence Le Jeune, Maxime Moreau architecture et design

La résidence Drolet, rénovation d’un édifice datant de la fin du 19ème siècle, se situe sur le Plateau Mont-Royal. La façade monochrome noire combinée aux fins détails architecturaux existants suggère selon l’architecte une « œuvre énigmatique ». L’œuvre, sobre et subtile durant le jour passe presque inaperçue jusqu’à ce qu’elle s’anime en fin de journée à l’aide d’éclairage artificiel qui souligne différentes textures et reliefs. Comme plusieurs projets de rénovation l’exigent, les ouvertures de la façade existante sont préservées. C’est plutôt du côté de la cour arrière qu’une généreuse fenestration brouille les limites entre l’intérieur et l’extérieur. La principale qualité de l’espace à aire ouverte est donc ici constituée de cette connexion spéciale avec l’extérieur, autant physique en été que visuelle en hiver.

intérieur de la maison à aire ouverte

Source : mxma.ca




Articles qui pourraient vous intéresser


5 raisons de s’abonner à Helix

5 raisons de s’abonner à Helix


5 excellentes raisons pour habiter Griffintown

5 excellentes raisons pour habiter Griffintown


Des logements modulaires destinés aux professionnels de la santé pour contrer la pénurie de logements

Des logements modulaires destinés aux professionnels de la santé pour contrer la pénurie de logements




La Philharmonie de l’Elbe – l’une des plus belles salles de concert au monde

La Philharmonie de l’Elbe – l’une des plus belles salles de concert au monde


Culdesac: un nouveau quartier sans voitures en plein désert de l’Arizona

Culdesac: un nouveau quartier sans voitures en plein désert de l’Arizona


Le marché de la copropriété en 2015 dans la région métropolitaine?

Le marché de la copropriété en 2015 dans la région métropolitaine?




Toit à moi Canada : contrer l’itinérance et la crise du logement un condo à la fois

Toit à moi Canada : contrer l’itinérance et la crise du logement un condo à la fois


10 complexes d’appartements où les animaux sont les bienvenus

10 complexes d’appartements où les animaux sont les bienvenus


Quatre projets du studio Heatherwick qui font la différence

Quatre projets du studio Heatherwick qui font la différence




« Log house » à Chicoutimi

« Log house » à Chicoutimi


Comment trouver un appartement : tour d’horizon des meilleures plateformes au Québec

Comment trouver un appartement : tour d’horizon des meilleures plateformes au Québec


Cette résidence redéfinit le modèle d’habitation traditionnel

Cette résidence redéfinit le modèle d’habitation traditionnel




Trouver un condo près d’une station de métro

Trouver un condo près d’une station de métro


Le NORDELEC – passer le fil du temps

Le NORDELEC – passer le fil du temps


condos  LUXXCITÉ et Cité 7 – uniques et avant-gardistes!

condos LUXXCITÉ et Cité 7 – uniques et avant-gardistes!




Des heurts à l’ouverture de l’Expo Milano 2015

Des heurts à l’ouverture de l’Expo Milano 2015


Derniers articles publiés


La citadelle de Kowloon : l’endroit le plus peuplé du monde au cœur de Hong Kong

La citadelle de Kowloon : l’endroit le plus peuplé du monde au cœur de Hong Kong


La maison extravagante de Lily Allen et David Harbour vendue pour 7 M$

La maison extravagante de Lily Allen et David Harbour vendue pour 7 M$


Taxe de bienvenue : le paiement en plusieurs versements encore peu appliqué

Taxe de bienvenue : le paiement en plusieurs versements encore peu appliqué




Smart Immo : un nouvel assistant intelligent pour simplifier la recherche de logements au Québec

Smart Immo : un nouvel assistant intelligent pour simplifier la recherche de logements au Québec


Fiducie foncière communautaire à Dunham : une solution innovante pour contrer la crise du logement

Fiducie foncière communautaire à Dunham : une solution innovante pour contrer la crise du logement


La signature Goodee, un design durable et réfléchi

La signature Goodee, un design durable et réfléchi




Deux minimaisons à vendre à Baie-Saint-Paul : une opportunité unique d’accès à la propriété

Deux minimaisons à vendre à Baie-Saint-Paul : une opportunité unique d’accès à la propriété


Minimaisons à Baie-Saint-Paul: une solution d’habitat abordable et durable

Minimaisons à Baie-Saint-Paul: une solution d’habitat abordable et durable


Immobilier : les stations de métro les plus convoitées de Montréal

Immobilier : les stations de métro les plus convoitées de Montréal




Ranking of Quebec’s most popular real estate projects for sale — 2025 Edition

Ranking of Quebec’s most popular real estate projects for sale — 2025 Edition


Palmarès des projets immobiliers à vendre les plus appréciés du Québec — édition 2025

Palmarès des projets immobiliers à vendre les plus appréciés du Québec — édition 2025


Quand les super-riches transforment les environnements protégés en terrain de jeu

Quand les super-riches transforment les environnements protégés en terrain de jeu




Comment trouver un appartement : tour d’horizon des meilleures plateformes au Québec

Comment trouver un appartement : tour d’horizon des meilleures plateformes au Québec


2800 mises en chantier en six mois : Laval se dirige vers une année record

2800 mises en chantier en six mois : Laval se dirige vers une année record


10 bâtiments abandonnés dans la ville de Montréal

10 bâtiments abandonnés dans la ville de Montréal




Premiers acheteurs : comment économiser en vue de l’achat d’une propriété

Premiers acheteurs : comment économiser en vue de l’achat d’une propriété