Le promoteur immobilier DevMcGill a reconverti l’ancienne Institution des Sourds-Muets de Montréal pour en faire un projet de condominiums au cachet unique: Ateliers Héritage.

Ateliers Héritage est la dernière phase du projet Ateliers Castelnau. Il s’agit d’un bâtiment patrimonial de pierres grises où 36 propriétaires auront le plaisir de vivre. Toutefois, il faudra faire vite puisqu’il reste seulement deux unités disponibles!
Un projet apprécié de tous
Ateliers Héritage est un projet adoré par ses résidents: il a d’ailleurs obtenu une note de 4.58/5 (19 votes) sur le répertoire Guide Immo. Il faut dire que ses services, ses aires communes et son emplacement privilégié dans le Mile-Ex y sont sûrement pour beaucoup! Le projet offre de chaleureuses et lumineuses unités personnalisables avec plusieurs choix de finitions. Les occupants bénéficient également de nombreuses aires communes telles qu’une terrasse sur le toit, un lobby muni d’un espace lounge et du wifi ainsi qu’un atelier de vélo et un espace multifonctionnel au sous-sol.
Ateliers Castelnau est l’un des seuls projets de Montréal où le promoteur a restauré des bâtiments patrimoniaux en condominiums tout en intégrant des bâtiments neufs afin de créer un quartier résidentiel agréable à vivre. Cela marque l’entrée dans une nouvelle époque pour tout le secteur.

L’héritage d’un quartier industriel
Construit en 1926, l’immeuble d’origine a vu défiler des centaines de jeunes en formation. Des ateliers de cordonnerie, de menuiserie, d’imprimerie, de tissage, de broderie et de peinture y étaient offerts. À l’époque, le quartier était occupé par de nombreuses industries, notamment celles du textile et de la transformation alimentaire. Le promoteur DevMcGill a voulu conserver le patrimoine bâti de cet édifice riche en histoire. Il a ainsi restauré le bâtiment tout en y intégrant divers clins d’œil au passé tels qu’un espace atelier et un jardin en cours d’aménagement qui soulignera l’histoire du secteur par son aménagement paysager et ses inscriptions sur le pavé.



Ateliers Héritage se situe sur la rue de Castelnau, entre les quartiers Mile-End et Parc-Extension, à quelques enjambées du parc Jarry. Afin de respecter le caractère historique de ce quartier désormais nommé affectueusement le Mile-Ex, le projet, à échelle humaine arbore un revêtement de pierres grises qui s’intègre parfaitement au bâti environnant.
En mai 2017, Guide Immo a eu la chance de visiter l’atelier des sourds avant sa conversion. Voici un aperçu.
Dernière chance d’habiter le projet
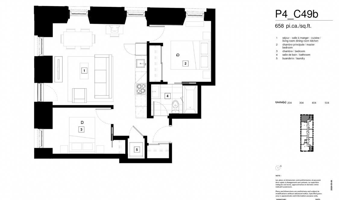
Ateliers Héritage est la quatrième et dernière phase du projet! Quelques propriétaires habitent déjà le bâtiment et il ne reste que trois unités en vente, soit les unités 204, 308 et 508. Ces unités ont été complètement rénovées et les fenêtres ont été changées, elles seront prêtes à être livrées dans le prochain mois.

Il s’agit de trois unités comprenant deux chambres à coucher et une salle de bain. Les unités 308 et 508 sont identiques (voir le plan ci-dessus) alors que l’unité 204 est représentée dans le plan ci-dessous.


Le Castelnau a définitivement permis de revitaliser le quartier tout en marquant son aspect historique, rendant ainsi hommage aux centaines d’artisans qui furent de passage. Si vous êtes intéressé par l’un des condominiums disponibles, il est possible de visiter les unités et le bâtiment en prenant rendez-vous avec le bureau des ventes directement ici.
Consultez également cet article pour en apprendre davantage sur le projet et pour voir l’évolution du bâtiment.































