Sorties d’un autre temps et pourtant si actuelles, les maisons usoniennes de Frank Lloyd Wright ont laissé leur trace dans le domaine architectural.
Alors que l’Amérique est en pleine Grande Dépression après le crash boursier de 1929, l’architecte Frank Lloyd Wright (1867-1959) fait partie des grands penseurs de l’époque, ceux que la crise fait réfléchir à un idéal socio-démocratique dans un pays qui doit se relever. Wright souhaite construire des habitations abordables pour permettre à la classe moyenne d’accéder à la propriété: des maisons pensées sans lésiner sur la qualité, ni le design. Des demeures en harmonie avec la nature à laquelle il accorde beaucoup d’importance. L’architecte donne vie à sa vision et réalise les maisons usoniennes.


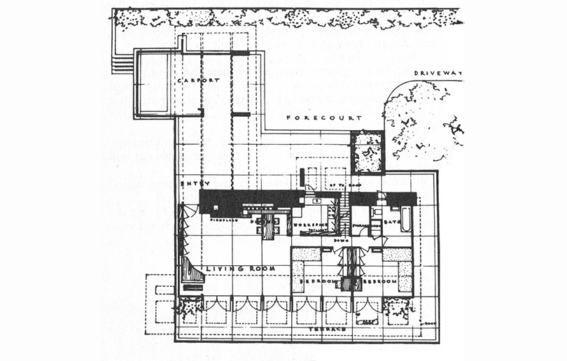
L’architecte innove en éliminant une étape coûteuse de construction traditionnelle : les maisons usoniennes n’ont pas de fondation, elles sont bâties sur une dalle de béton. Dans cette dalle est installé un système de chauffage radiant. Pour la structure et les murs, l’architecte opte pour le béton en blocs et en panneaux, le bois, la brique, le verre. Ce sont des maisons de plain pied, leur toit est plat et prolongé d’un abri pour voiture remplaçant l’habituel garage.
Le design de l’usonienne joue avec les lignes horizontales. La partie principale de la maison est un grand espace à aire ouverte (salle à manger,cuisine, salon). C’est le cœur de la maison et les autres pièces (chambres, salle de bain) plus petites y sont reliées, principalement par un corridor.


L’utilisation remarquable de grandes fenêtres et d’ouvertures à claire-voie permet de tirer partie au maximum la lumière naturelle. Cette fenestration abondante crée le lien entre l’intérieur et l’extérieur que souhaite Wright, ceci, sans impact énergétique grâce au révolutionnaire chauffage au sol. Les murs sont en matériau brut, il n’y a ni peinture ni plâtre. Du mobilier intégré contribue à l’aspect sobre et fonctionnel de l’habitat. L’intérieur de la maison usonienne combine un design impeccable à des matériaux durables le tout à coût raisonnable.


Chacune des maisons usonienne porte le nom de ses premiers propriétaires. Wright rencontre chaque famille pour qui il va dessiner et construire une maison. Il souhaite les découvrir et les faire participer au projet qu’il veut à leur image. Il prend aussi le temps de s’imprégner du site sur lequel il va construire l’habitation. Ses maisons doivent être intégrées le mieux possible avec la nature environnante et s’y fondre en harmonie le plus possible.
Des matériaux durables, des aires ouvertes, une lumière abondante, le respect de la nature environnante et un certain minimalisme. Des préoccupations mises de l’avant dans le domaine de l’architecture et du design d’aujourd’hui.
Frank Lloyd Wright a dit un jour qu’un architecte devait être un prophète. Il a bâti la première usonienne il y a 80 ans. Le moins qu’on puisse dire c’est qu’il a été d’avant-garde!































